Real Estate News

‘Micro-living’: Why new apartments are shrinking in size across the Triangle

Inside a rental unit at Rigsbee Collection apartments, which recently opened at 318 W. Corporation St. in Durham with 178 units -- many between 360 and 500 square feet amid growing demand for “micro-units.”
Inside a rental unit at Rigsbee Collection apartments, which recently opened at 318 W. Corporation St. in Durham with 178 units -- many between 360 and 500 square feet amid growing demand for “micro-units.”

No, it’s not your eyes.

New apartments are shrinking across the Triangle as compact living becomes the new normal.

In Raleigh, the average new apartment was 935 square feet in 2024 — a 25-square-foot dip in the last 10 years, according to a new study by RentCafe.

In Durham, the shrinkage is even greater.

In 2024, the average new apartment was 927 square feet. That’s a 30-square-foot drop over the last decade.

The shift is largely driven by a post-pandemic construction boom and the influx of studio and one-bedroom apartments, which now comprise between 56% and 59% of all new rental units in both cities, RentCafe’s Esther Urmosi said.

Renters’ preferences are also changing, she said. Smaller, “more efficient” apartments — especially micro-units and studios — are increasingly attractive for those who prioritize location, amenities and affordability over square footage.

The study looked at 177 U.S. rental markets using size and rent data from sister company Yardi Matrix. It compared new builds (from 2015 to 2024) with those from a decade earlier.

Demand is growing

Amid rising costs for labor, land and materials, developers are building smaller spaces to provide more affordable options. They’re also reacting to demand, said Jon Lowder, executive director at Apartment Association of North Carolina.

“More people are moving closer into the cities, and you’re seeing urbanization,” he said. “As more density comes in, you’re going to see smaller products in terms of square footage per unit. We don’t see a lot of three bedrooms get built anymore.”

Rigsbee Collection apartments is an example of how quickly the market is changing. It opened at 318 W. Corporation St. in Durham last year with 178 units — many between 360 and 500 square feet.

Today, prices start at around $1,535 per month and most already have waitlists, according to the website. Among the perks: a 24-hour gym, rooftop lounge, pool and café, and multiple co-working spaces.

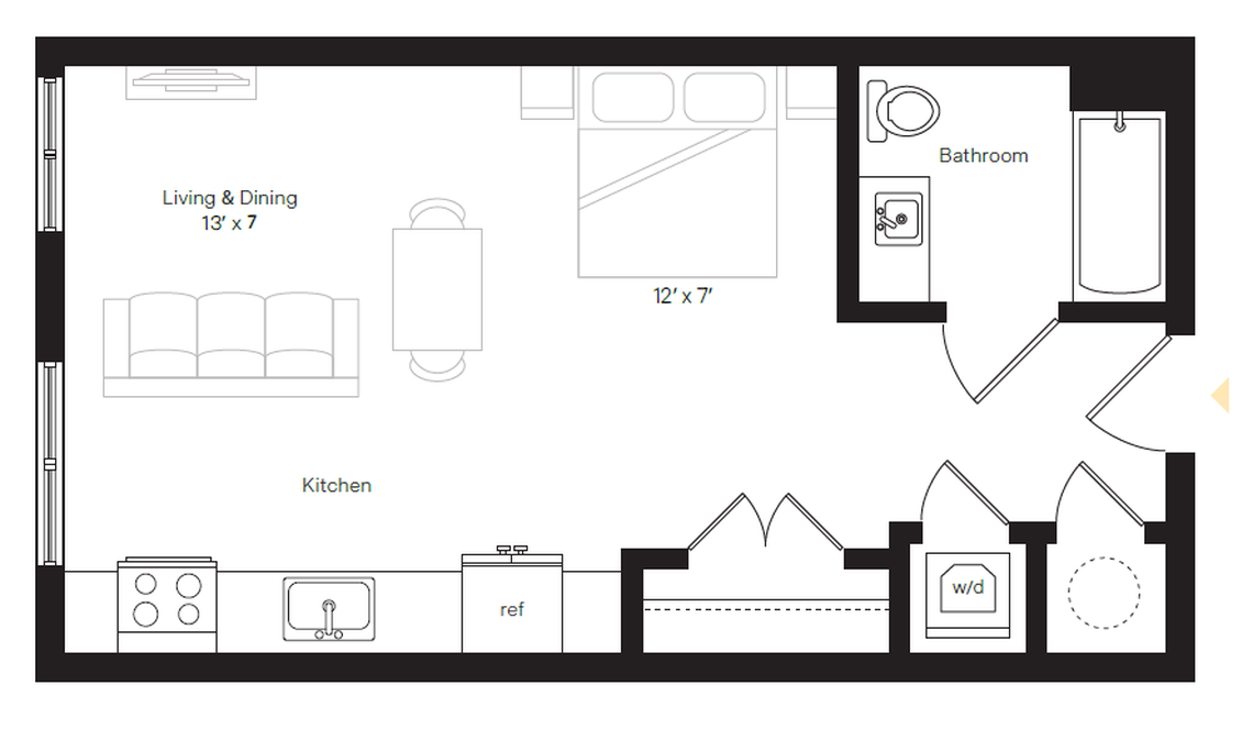
A floor plan for a 484-square-foot studio apartment in Rigsbee Collection apartments, which recently opened at 318 W. Corporation St. in Durham.
A floor plan for a 484-square-foot studio apartment in Rigsbee Collection apartments, which recently opened at 318 W. Corporation St. in Durham. Rigsbee Collection
A view of the rooftop lounge at Rigsbee Collection apartments, which recently opened at 318 W. Corporation St. in Durham with 178 units and a slew of amenities.
A view of the rooftop lounge at Rigsbee Collection apartments, which recently opened at 318 W. Corporation St. in Durham with 178 units and a slew of amenities. Rigsbee Collection

Around the corner is Atlas Durham at 321 W. Corporation St. with 171 units, offering 387-square-foot studios starting at $1,165. In Raleigh, the Dillon offers a 469-square-foot studio starting at $1,483 per month.

In North Carolina, a few cities defied the trend.

In both Greensboro and Wilmington, the average size of new apartments was over 1,000 square feet. That’s a 15-square-foot increase over the last decade.

A chart showing the average size of new apartments in North Carolina based on data from RentCafe. The change is calculated by comparing the average size of new apartments from 2015 to 2024.
A chart showing the average size of new apartments in North Carolina based on data from RentCafe. The change is calculated by comparing the average size of new apartments from 2015 to 2024. RentCafe

Nationwide, apartments are starting to grow again after a decade-long shrinking trend. The average size now sits at around 908 square feet.

Tallahasee, Florida, led the nation with the largest apartments, 1,130 square feet, while Seattle offered the smallest — 649 square feet.

This story was originally published May 2, 2025 at 7:00 AM with the headline "‘Micro-living’: Why new apartments are shrinking in size across the Triangle."

Related Stories from Durham Herald Sun
Chantal Allam
The News & Observer
Chantal Allam covers real estate for the The News & Observer and The Herald-Sun. She writes about commercial and residential real estate, covering everything from deals, expansions and relocations to major trends and events. She previously covered the Triangle technology sector and has been a journalist on three continents.
Get unlimited digital access
#ReadLocal

Try 1 month for $1

CLAIM OFFER