Business

Developer wants to build townhouses on former city-owned property near downtown Raleigh

A developer wants to build eight town homes on a former city-owned property near the Red Hat Amphitheater.
A developer wants to build eight town homes on a former city-owned property near the Red Hat Amphitheater. zeanes@newsobserver.com

A Cary developer wants to build townhouses on a vacant lot near Raleigh’s Red Hat Amphitheater and the Boylan Heights neighborhood.

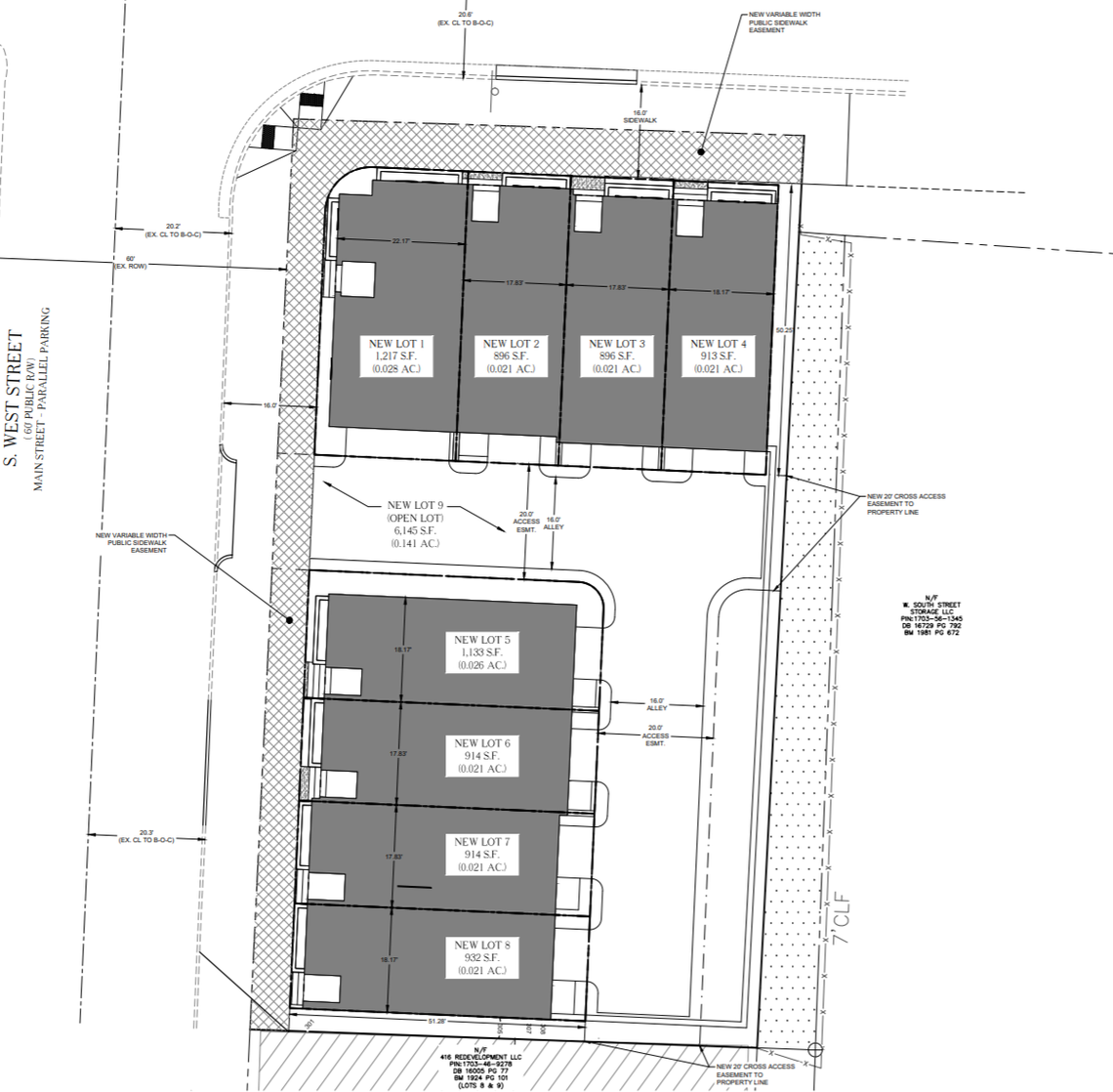
The vacant lot, at the intersection of South West and West Lenoir streets, is about a third of an acre in size. The developer would build eight townhouses there, according to plans submitted to the city.

City View Townes is listed as the name of the project, and the eight townhouses there would be four stories in height each. The application states that the townhouses would range in size from a minimum of 1,000 square feet to a maximum of 2,400 square feet.

The potential prices ranges to live there are given as between $700,000 and $800,000.

The firm behind he project, Rapp Ventures, was registered by Jay Rapp, according to the N.C. Secretary of State’s database. Efforts to reach Rapp, which has a Cary address, by phone were not successful.

Courtesy of City of Raleigh

The intersection of South West and West Lenoir streets has been the scene of several development projects in recent years. Sandwiched around the intersection is a self-storage building, the under-construction luxury condo building called The Fairweather, another completed residential project and the future home of the Sam Jones BBQ restaurant.

In general, the western side of downtown, home to the Warehouse District and the residential Boylan Heights neighborhood, has become attractive to real estate developers in recent years.

The Warehouse District, especially, could look significantly different in the coming years, if several high-profile rezoning cases are approved there. That part of downtown has received increasing attention due to its vibrant cultural scene as well as the construction of Union Station and the success of The Dillon, an office and apartment tower built by Kane Realty.

And Kane Realty, the firm behind The Dillon, is currently trying to double down on its investments in the district, asking the city for permission to build up to 20 stories on the former Clancy & Theys property, just across the railroad tracks from Union Station and The Dillon.

At least four other groups are also seeking permission to build taller buildings along the western edge of downtown, which used to be mainly low-slung warehouse structures.

The City View Townes project is estimated to be completed next year, according to the plans. Raleigh-based Cline Design is the architect for the project.

A layout for the project shows that four of the townhouses would be along West Lenoir Street and the other four would be along South West Street. A ninth lot would be left open and would connect to an alley way behind the townhouses, according to the plans.

Each house would also come with a garage, the plans state.

Courtesy of the City of Raleigh

The City of Raleigh owned the vacant property until last year, when it was designated as a surplus property.

Rapp bought the land from the city in a bid for $875,000, according to city records. The proceeds from the sale will be used for affordable housing efforts, according to City Council minutes.

It’s the second formerly city-owned property to be targeted for development in recent weeks.

Once condemned and then taken over by the city, a vacant building on South Blount Street in downtown Raleigh is expected to be turned into restaurant space after a Cary doctor bought it from the city for $630,000.

The proceeds from that sale also went toward funding the city’s affordable housing efforts.

This story was originally published May 29, 2019 at 3:54 PM with the headline "Developer wants to build townhouses on former city-owned property near downtown Raleigh."

Zachery Eanes
The Herald-Sun
Zachery Eanes is the Innovate Raleigh reporter for The News & Observer and The Herald-Sun. He covers technology, startups and main street businesses, biotechnology, and education issues related to those areas.
Get unlimited digital access
#ReadLocal

Try 1 month for $1

CLAIM OFFER